35 & 37 Conference Street

Central City, Christchurch

2026

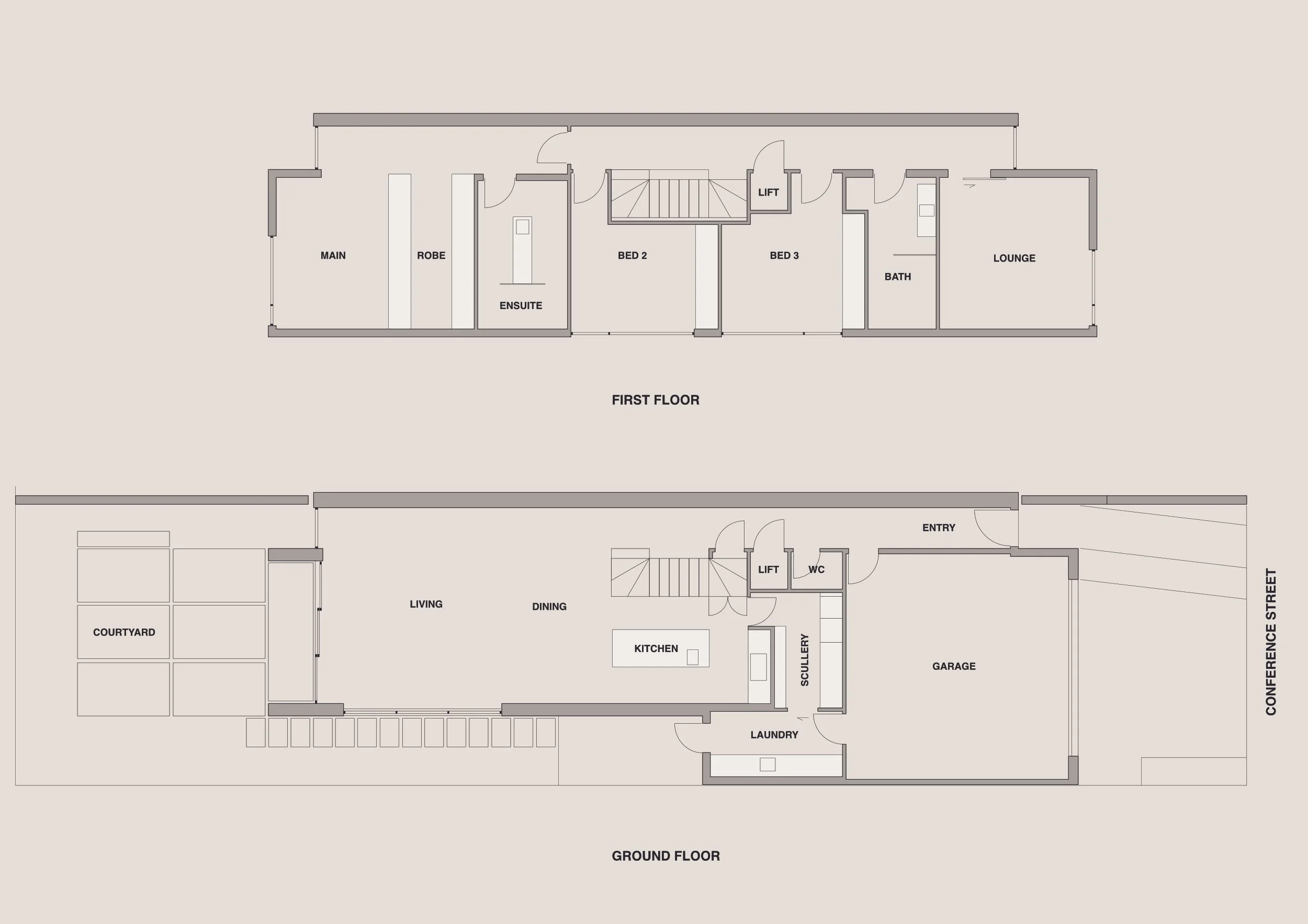
35 and 37 Conference Street introduces two contemporary townhouses to the heart of the city. Each offers three bedrooms, two living areas, and a double garage, designed with flexibility for modern life.

Due for completion in early 2026, the project continues our focus on simple forms, practical layouts, and materials that will stand the test of time.

37 Conference Street